「心地良い住空間を作る」をモットーにする技術者のプロ集団『希彩』

事業内容 [建築設計部門]

業務

  • 建物施工図/生産設計管理業務/建築意匠設計
  • ビル、マンション、工場、病院、学校等建築物に付帯する図面作成、管理業務
  • 人材派遣業務
    (許可番号 派12‐300163)
  • 建築生産設計業務一式請負
  • CADオペレーター教育
  • CADオペレーター派遣業務
  • 海外事業(バンコク)

業務フロー

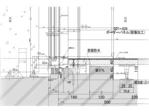
  • 各種設計図に基づき、施工図を作成する
  • 設計・施主との打ち合わせを行い、承諾図として現場に施工図を納める
  • 各メーカー(アルミサッシ・鋼製建具・ELV・アルミパネル・成型セメント版・木工・家具・金物・その他多数)の製作物に関する製作図面のチェックを行い、承諾図として現場に納める
  • 設計図書による仕様において、建築物に不具合が生じる部分があるかを検討し、設計者・管理者・現場を協議・打ち合わせを行い、施工図・製作図への反映を行う
  • 各製作物の工程管理(製作日程)
  • 建築施工図のCADオペレーターを育成し、現場へ派遣

施工マネージメント

  • 現場打ち合わせ:基本方針の確認
  • 施工図面の作成(検討図)/ 製作物業者作図前打ち合わせ
  • 施工図面のチェック/ 検図/ 製作図面チェック
  • 業者との打ち合わせ
  • 定例打ち合わせ及び、議事録の作成、現場打ち合わせ(方針の確認)
  • 製作図の再チェック修正(製作図の承諾)
  • 施工図の修正(施工図の承諾)
  • 現場所長・管理者承諾
  • 現場係員への施工図注意事項説明会(OJT)
  • 施工

教育

私たち社員一人一人が、エンドユーザー(発注者)の立場に立って、より最適な状態を意識し、よりよいものを提案、ものづくりしていくことを日々考えております。新人技術者にも、技術力・スピードをつけ、より正確な図面を描けるように指導し、また信頼を得るよう教育していきたいと考えております。

CADオペレーター育成

  • AUTO CADを使った実践指導
  • 未経験でもCAD操作は約2ヶ月で出来るようになります

人材派遣業務(許可番号 派12‐300163)

進行中物件

【物流倉庫】S造 地上4階
業務内容 生産設計業務
状態 受注中
地域 首都圏
用途 物流倉庫
構造 S造 地上4階
現場の状況

基礎工事着手、鉄骨建方

【マンション】RC造 地上13階
業務内容 生産設計業務
状態 受注中
地域 首都圏
用途 分譲マンション
構造 RC造 地上13階
現場の状況

竣工 業務完了

【マンション】RC造 地上14階
業務内容 生産設計業務
状態 受注中
地域 首都圏
用途 マンション
構造 RC造 地上14階
現場の状況

竣工 業務完了

【工場】S造 4階
業務内容 生産設計業務
状態 受注中
地域 首都圏
用途 工場
構造 S造 4階
現場の状況

現在進行中

基礎工事着手

【マンション】RC造 地上32階 地下2階
業務内容 生産設計業務
状態 受注中
地域 首都圏
用途 マンション
構造 RC造 地上32階 地下2階
現場の状況

計画中

【商業施設】
業務内容 生産設計業務
状態 受注中
地域 首都圏
用途 駅ビル
構造 S造 6階
現場の状況

基礎工事着手

更新日:

Copyright© 株式会社 希彩 , 2026 All Rights Reserved.